162 662 ₽/м²
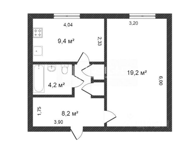
Данный объект недвижимости подходит под Арктическую ипотеку - 2% для определенной категории граждан РФ. Компания "Этажи" предлагает Вашему вниманию уникальную возможность приобрести комфортную квартиру в северной части города в мкр. Советский, отличающаяся продуманной и узаконенной планировкой. Объект находится в отличном состоянии с качественным ремонтом: установлены пластиковые окна, натяжные потолки, новое напольное покрытие и межкомнатные двери. Ключевым преимуществом является эффективная организация пространства, включающая изолированную спальню, просторную гостиную, удобную кухню с выходом на балкон, а также большую гардеробную комнату. Санузел совмещенный, отделан керамической плиткой (перепланировка узаконена). Вся мебель и техника при продаже остается в квартире. Расположение дома обеспечивает высокий уровень бытового комфорта и транспортной доступности. В пешей доступности находятся школа 11, Арктический лицей, детский сад, отделение Сбербанка, супермаркет "Пятерочка", аптеки и различные торговые точки. Остановка общественного транспорта с маршрутами 1, 4 и 25 расположена непосредственно у дома, что обеспечивает быстрое сообщение с другими районами города. Это предложение представляет собой оптимальный вариант для тех, кто ценит удобство, готовность к проживанию и развитую инфраструктуру. Помощь в оформлении ипотеки, показы данной квартиры организуем в удобное для вас время. Звоните!!! Дополнительно оплачивается комиссия с покупателя. Код пользователя: 61973 Номер в базе: 11863703 Квартиры в ипотеку в микрорайоне Советский в городе Новый Уренгой.



















































































